Ведомость помещений под коммерческую недвижимость АБЦ 'Адмирал' и планировки помещений
12.04.2012
| Коммерческие помещения для продажи. Центральная секция, 12 этажей, левое крыло 3 этажа | ||||||||||||
| Номер | Этаж (со двора) | Назначение | Площади ( разбивка отдельных помещений условная по проекту) | Площади | Отдельный вход | Вывеска | Высота потолка | Цена кв.м. опт | Розница до 250 кв.м. | Ссылка план | ||
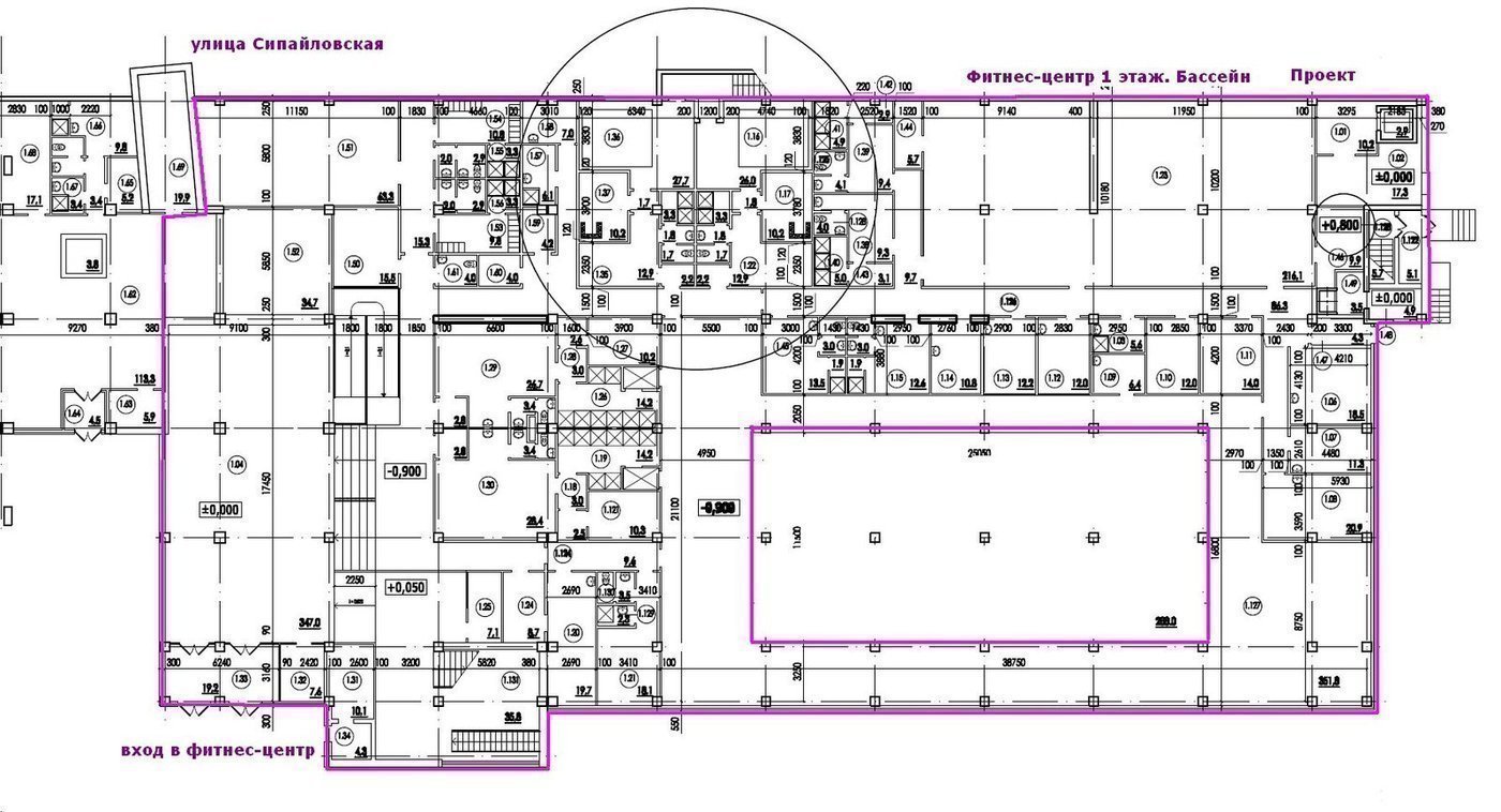
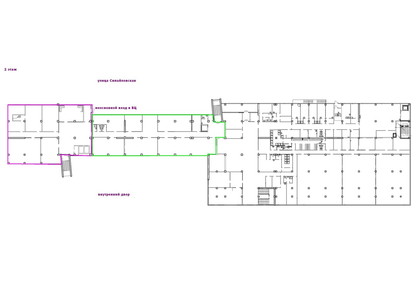
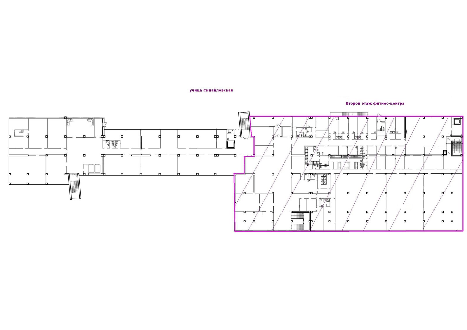
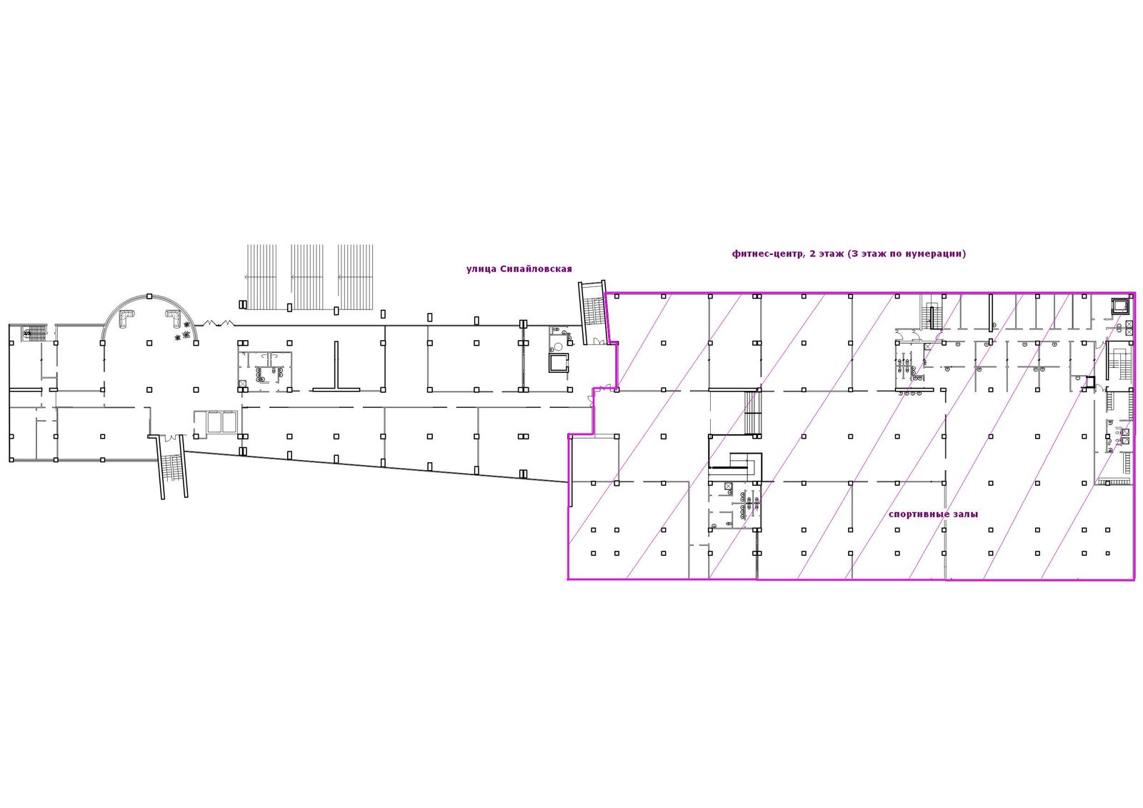
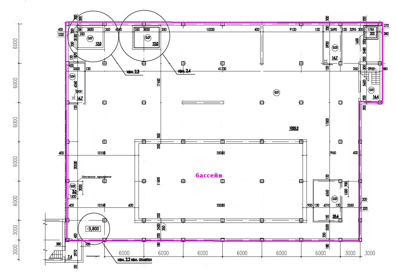
| с 1 по 3 левый блок | Фитнес-центр с бассейном 25м в проекте, также салон красоты и др. сопутствующие | 8000 кв.м. на 3 этажах, | 8000 | Со торца главный | да | разная | индивидуально | - | посмотреть: этаж 0 (технический) этаж 1 этаж 2 этаж 3 | |||
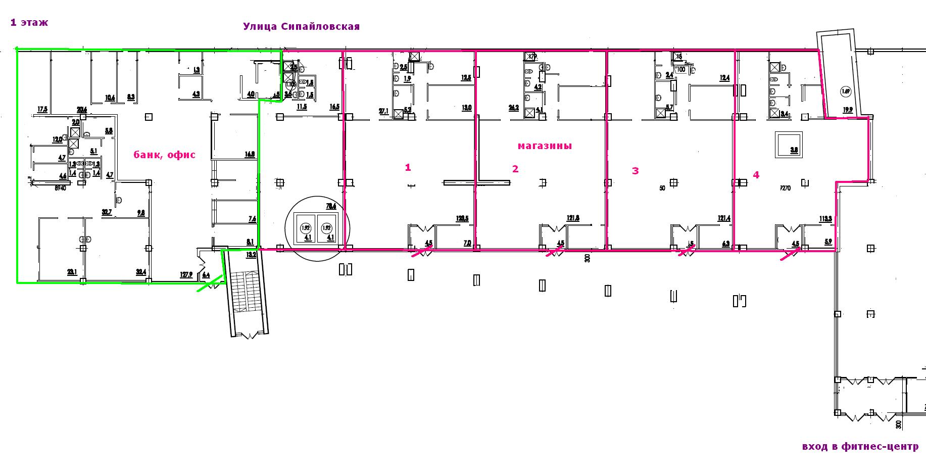
| 1 | 1 | Магазины-склады с отдельным входом 6 шт, площади магазинов 370-392 кв.м., в тч подсобные помещения 60 кв.м., кабинер 22 кв.м., склад-загрузочная 57 кв.м., тамбур | около 590 кв.м. каждый магазин, 3500 кв.м. весь этаж, возможно объединение | 590, 3500 | Со ДВОРА у каждого магазина есть отдельный вход основной и дополнительный | возможность вывески | 4 | индивидуально | 45 | план посмотреть | ||
| 1 | 1 | Помещение под офис, банк | 280 | 280 | да | да | 4 | индивидуально | план посмотреть | |||
| 1 | 1 | Магазины с отдельным входом расположены прямо напротив жилого массива . 4 магазина площадью 188 кв.м., в том числе торговая 120-123 кв.м. | 188 кв.м возможно объединение, в т.с. 120 торговая, кабинет 27 кв.м., прочие подсобные помещения магазина | 188, 376, 564, 752 | да | да | 4 | индивидуально | план посмотреть | |||
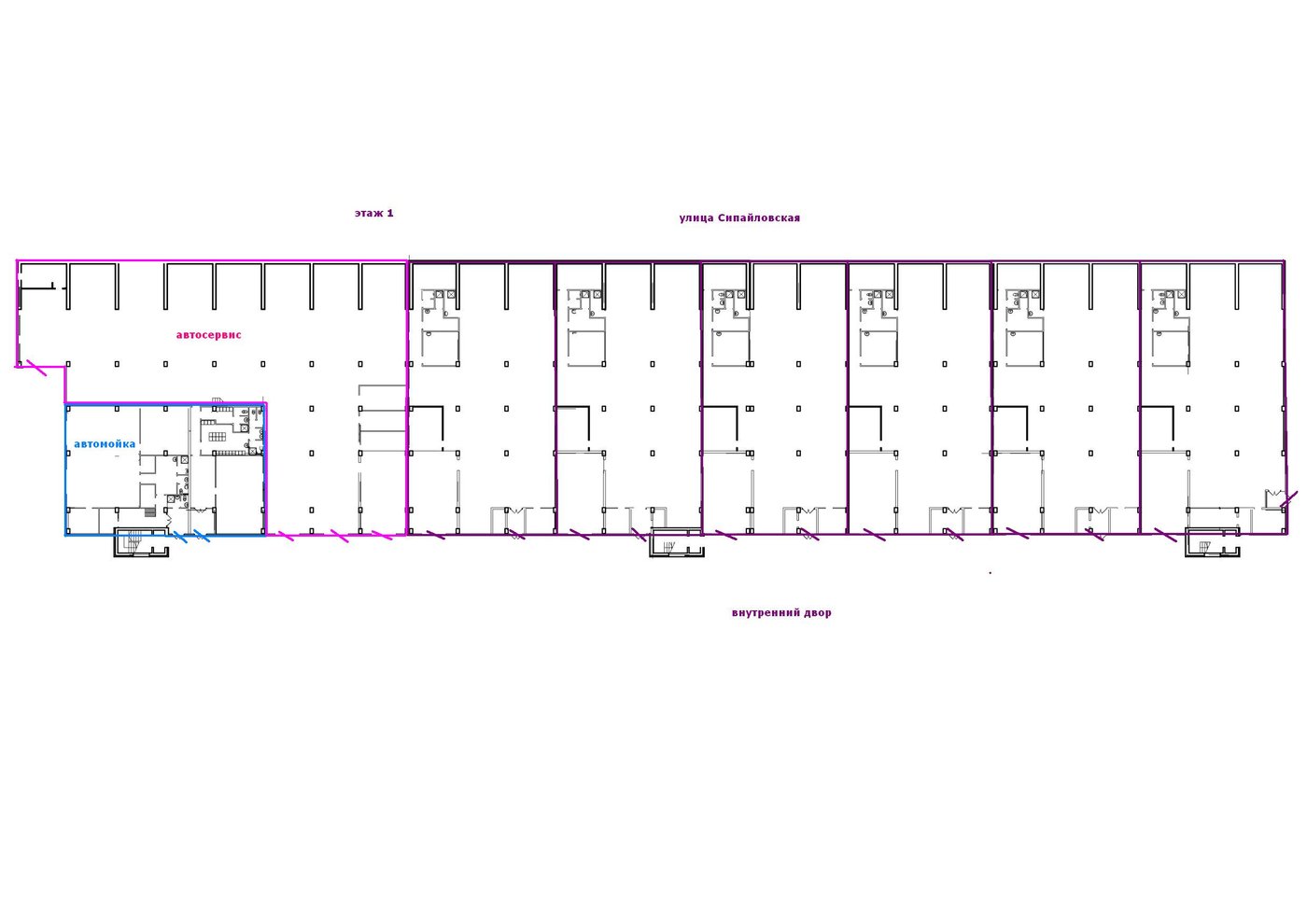
| 1 | 1 | Автомойка и автосервис | 312 кв.м. автомойка, сервис 1225 кв.м., с отдельными входами, возможно использование под большой супермаркет | 312, 1225, 1537 | да | да | 4 | индивидуально | план посмотреть | |||
| 2 | 2 | Магазины или клиентские офисы. Центральная часть 566 кв.м. левая часть, которую можно рассматривать отдельно - 597кв.м. | Центральная часть: 54,7+70,5+75,5+74,3+72,5+ коридоры и подсобные. В центральный блок ведет отдельный дополнительный к основному в здание вход с улицы | 566, 597, 1160 | с УЛИЦЫ возможна организация нескольких входов, помимо существующего | да | 3,5 | индивидуально | 45 | план посмотреть | ||
| Левый блок: 107+46,6+55,8+55,8+61,4+36,4+52,1+139,6+подсобные | 597 | возможен отдельный вход с улицы в эту часть | индивидуально | 45 | план посмотреть | |||||||
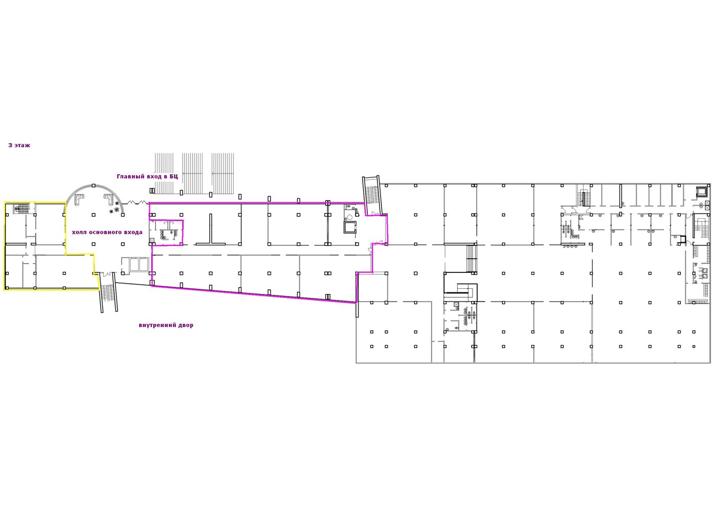
| 3 | 3 | Офисы, ресторан, офисы+ресторан | Центральный холл центра с лифтом и пожарным выходом. Направо и налево от него - реализуемые помещения. Площадь холла 232 кв.м., правой части - 170 , центральной - 750 . Итого: 1153 кв.м. | 170, 750, 1153 | Главный вход в центральную часть, отдельный вход | да | 3,5 | индивидуально | 45 | план посмотреть | ||
| Правая часть от холла общая площадь 170 кв.м, возможно небольшое увеличение за счет холла. Помещения: 50+40,9+25,7+20,6+12,3+технические | 170 | Главный вход в центр или организация отдельного дополнительного входа | да | 3,5 | индивидуально | 45 | план посмотреть | |||||
| Центральная часть общая площадь 750, в т.ч: 31,5+100,9+115,4+124,7+96+114,8+холл-коридор 167,8 | 750 | нет | 3,5 | индивидуально | 45 | план посмотреть | ||||||
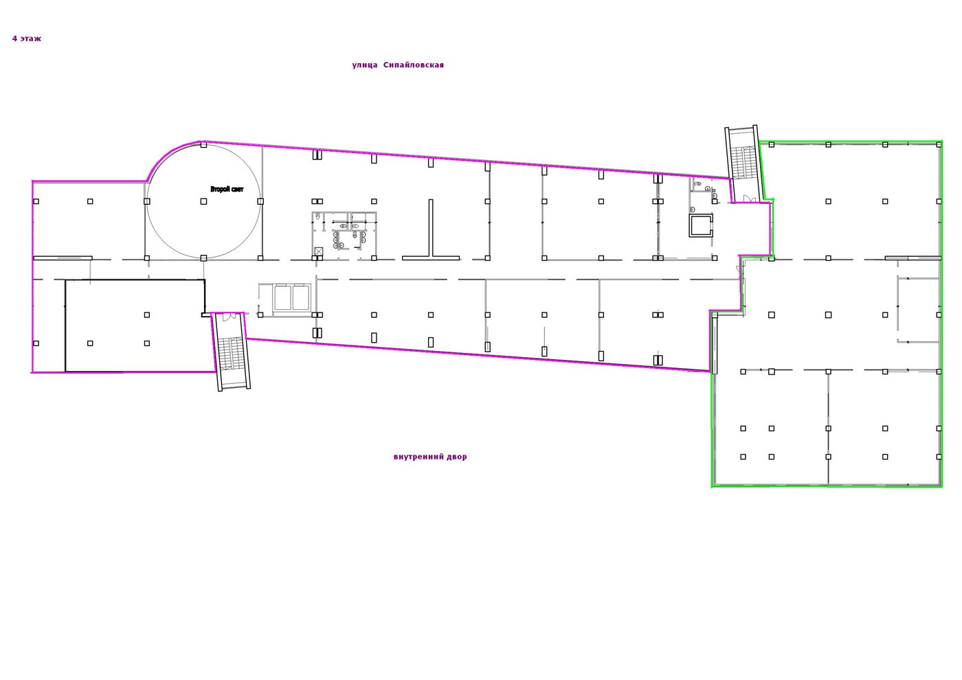
| 4 | 4 | Офисы, фитнес-центр без бассейна, апарт-отель. Возможно размещение фитнес-центра без бассейнатолько в левой части 722 кв.м., либо на весь этаж 1860 кв.м. | Центральная часть - офисы или апарт-отель 1147 кв.м., в т.ч. Офисная коридорная разбивка: 119+98,7+129.5+18,4+33,7+33,5+110+61,5+165,8+140+88,8+144,5 коридор | 722, 1147, 1860 | нет, через основной вход на лифте | индивидуально | 45 | план посмотреть | ||||
| Левая часть 722 кв.м., стена выходит на теннисные корты на крыше: 140+159+170+28,3+217+технические | 722 | индивидуально | 45 | план посмотреть | ||||||||
| 5 | 5 | Апарт-отель | Площадь этажа 1000 кв.м. с разбивкой на 1,2,3-комнатные апартаменты квартирного и студийного типа и места общего пользования Стандартные: 1-комнатные апартаменты и апарт-студии от 28 до 35 кв.м., 2-комнатные апартаменты и апарт-студии - от 40 до 50 кв.м. 3-комнатные апартаменты и апарт-студии - от 56 до 80 кв.м. Возможны свободные планировки при покупке от 500 кв.м. | 1000 или квартира | через центральный вход на лифте | 4 | индивидуально | 45 | план | |||
*счет этажей идет со двора
Этажность 12
Офисные помещения с 1 по 4 эт центральная секция продажа
Апартаменты с 5 по 10 эт около 5000 кв.м. продажа с управлением
Торговые помещения с 1 по 4 эт все 3 секции продажа
Фитнес-центр 6000 кв.м. с бассейном в отдельном крыле либо 1800 кв.м. без бассейна на целый этаж №4
Теннисные корты на крыше 880 кв.м. левая секция
Зарезервированные помещения 11-12этажи центральная секция
Благоустройство внутреннего двора 50м до инфраструктуры Сипайлово-3, парковка, озеленение
Парковка с улицы для посетителей всего 160 мест
Парковка со двора для посетителей
Парковка 144 места для посетителей
Паркинг 170 мест на верхнем этаже
Гаражи 494 мест продажа
Озеленение да
Лифты в лифтовых холлах по 2
Остановка общ транспорта утверждена напротив
Отделка офисов и магазинов чистовая, под заказ
Отделка апартаментов получистовая, под заказ, подряд
Стоимость типовой отделки/ кв.м. смета или фиксированная цена кв.м.
Управление недвижимостью Варианты "Гарантированный доход", "Переменынй доход", " Апарт-рента"
Всю информацию вы можете получить по телефону (347)299-14-14, 8-909-349-14-14
Вознаграждение агентств-партнеров при заключении партнерского договора с Сетью Агентств Недвижимости ЭКСПЕРТ составляет 1.5 % от суммы покупки

Количество просмотров -









