Строящиеся жилые дома по ул. 8 Марта, ул. Энтузиастов и ул. Комсомольской, 28. Цены ниже!
Строительство нового дома ведется на пересечении улиц Х.Давлетшиной и 8 Марта. При строительстве используются самые современные технологии.
- дом находится в непосредственной близости от центральный транспортных магистралей города – Проспекта Октября, 50 лет Октября, Проспекта Салавата Юлаева
- здание надежно защищено от автомобильного шума и воздействия транспортного потока
- строительство идет в квартале с развитой инфраструктурой
- технологичное панельное строительство с облицовкой из кирпича обещает скорые сроки сдачи
В доме 4 секции. 14,10 и 9-этажные секции. На первом-втором этажах возможна покупка помещений под офисы и коммерческую недвижимость.
- квартиры с оптимальными площадями и удобными планировками, 1,2,3,4-комнатные
- возможность покупки квартиры в рассрочку
- окна – пластиковые стеклопакеты
- остекление балконов-лоджий пластиковыми стеклопакетами
- не территории будет детская площадка, озеленение и цветники
Сдача 4 квартал 2009 года
Дом строится на пересечении улиц Энтузиастов и Лесотехникума, рядом со школой №97
Строительство дома ведтся с использованием энергосберегающих материалов, благодаря которым у жителей нового дома будет прекрасная возможность в жару находиться в прохладе, а зимой жить в тепле и уюте
Дом находится вблизи центральных транспортных магистралей - ул.Менделеева и Проспекта Салавата Юлаева
Здание защищено от шума, так как находится в глубине квартала
В квартале присутствует вся необходимая инфраструктура
Дом кирпичный, 2 подъезда, 9 этажей. 1 и2-комнатные квартиры. На первом этаже возможна покупка офисов и помещений под коммерческую деятельность на цокольном этаже.
Дом по ул. Комсомольской
Микрорайон, в котором ведется строительство, окружен жилыми кварталами с хорошо развитой инфраструктурой: детский сад, , школа, ТЦ «Мир», ТЦ «Семья», универмаг Уфа. В пешеходной доступности – магазины, кафе. Недалеко лесопарковая зона.

Квартиры сдаются с черновой отделкой
Здание защищено от автомобильного шума
Возможна рассрочка с фиксированной ценой и скидки при 100% оплате
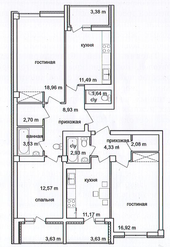
Планировки:
| Адрес объекта | Мат-л стен | Кол-во комнат | Этаж/этаж-ть | Общая площадь | Полезн. площадь | Площадь кухни | Площадь комнат | Высота потолков | Отделка | Срок сдачи | Цена за кв.м. | Общая стоимость | Условия рассрочки |
| ОДНОКОМНАТНЫЕ КВАРТИРЫ | |||||||||||||
| ж/д по Комсомольской, 28 | м+к | 1 | 10/10 | 38,77 | 16,85 | 9,65 | | 2,65 м | черновая | сдан | 46 000 | 1 783 420 | уступка, торг |
| 1 | 10/10 | 38,10 | 16,50 | 9,75 | | 2,65 м | черновая | 46 000 | 1 752 600 | ||||
| 1 | 10/10 | 38,78 | 16,85 | 9,65 | | 2,65 м | черновая | 46 000 | 1 783 880 | ||||
| 1 | 5/10 | 38,06 | 16,49 | 9,66 | | 2,65 м | черновая | 46 000 | 1 750 760 | уступка | |||
| 1 | 3,9/10 | 38,10 | 16,50 | 9,75 | | 2,65 м | черновая | 46 000 | 1 752 600 | ||||
| 1 | 9/10 | 38,13 | 16,50 | 9,65 | | 2,65 м | черновая | 46 000 | 1 753 980 | ||||
| ж/д по ул. 8 Марта сек.А,Б | п+к | 1 | 3-10/11 | 39,53 | 18,36 | 9,87 | | 2,60 м | чистовая | 1 кв. 2010 г. | 40 000 | 1 596 200 | рассрочка до конца 2010г.- 44.000р/м2, рассрочка до конца 2009 г. - 42.000р/м2 |
| ж/д по ул. 8 Марта сек.В | 1 | 3-5,7-9,11-13/13 | 39,53 | 18,36 | 10,13 | | 2,60 м | 40 000 | 1 596 200 | рассрочка до конца 2010г.- 44.000р/м2, рассрочка до конца 2009 г. - 42.000р/м2 | |||
| 1 | 3-10/13 | 37,98 | 17,07 | 9,90 | | 2,60 м | 40 000 | 1 534 200 | |||||
| 1 | 12,13/13 | 37,97 | 17,07 | 9,90 | | 2,60 м | 40 000 | 1 533 800 | |||||
| 1 | 11/13 | 42,10 | 19,92 | 9,90 | | 2,60 м | 40 000 | 1 699 000 | |||||
| ж/д по ул. 8 Марта сек.Г | 1 | 3,10/10 | 36,41 | 18,36 | 10,13 | | 2,60 м | 40 000 | 1 471 400 | рассрочка до конца 2010г.- 44.000р/м2, рассрочка до конца 2009 г. - 42.000р/м2 | |||
| 1 | 5,7,9/10 | 38,37 | 17,07 | 10,13 | | 2,60 м | 40 000 | 1 549 800 | |||||
| 1 | 3,4,7/8 | 53,31 | 20,78 | 12,80 | | 3 м | 42 000 | 2 239 020 | |||||
| 1 | 4,6,7,8/8 | 45,76 | 18,75 | 12,07 | | 3 м | 42 000 | 1 921 920 | |||||
| ж/д по ул. Менделеева (Акбузат) | к | 1 | 7/16 | 44,00 | 18,00 | 12,00 | | 2 60м | черновая | сдан | 46 000 | 2 024 000 | |
| 13,15/16 | 44,00 | 18,00 | 12,00 | | 2 60 м | чистовая | | ||||||
| ДВУХКОМНАТНЫЕ КВАРТИРЫ | |||||||||||||
| ж/д по Комсомольской 28 | | 2 | 4/10 | 78,29 | 39,63 | 15,53 | 21,4/18,3 | 2,65 м | черн | | 46 000 | 3 601 340 | уступка |
| 2 | 9/10 | 75,87 | 38,58 | 12,6 | 20,08/18,5 | 2,65 м | черн | 44 000 | 3 338 280 | ||||
| ж/д по ул. 8 Марта сек.А,Б | п+к | 2 | 10/11 | 55,36 | 29,63 | 8,38 | 17,07/12,56 | 2,60 м | чистовая | 1 кв. 2010 г. | 40 000 | 2 229 400 | рассрочка до конца 2010г.- 44.000р/м2, рассрочка до конца 2009 г. - 42.000р/м2 |
| 2 | 10/11 | 55,17 | 29,63 | 8,38 | 17,07/12,56 | 2,60 м | 40 000 | 2 221 800 | |||||
| 2 | 10/11 | 56,06 | 29,43 | | | | 40 000 | 2 257 400 | |||||
| 2 | 10/11 | 55,58 | 29,43 | 11,76 | 17,07/12,36 | 2, 60 м | 40 000 | 2 238 200 | |||||
| ж/д по ул. 8 Марта сек.Г | 2 | 3/10 | 56,07 | 29,43 | | | | 40 000 | 2 257 800 | рассрочка до конца 2010г.- 44.000р/м2, рассрочка до конца 2009 г. - 42.000р/м2 | |||
| 2 | 6,7,8,9/10 | 59,67 | 34,14 | 8,34 | 17,07/17,07 | 2,60 м | 40 000 | 2 401 800 | |||||
| ж/д по ул. Энтузиастов | к | 2 | 9/9 | 57,82 | 31,30 | 9,70 | 17,1/14,16 | 2,65 м | черновая | 4 кв. 2008 | 46 700 | 2 700 194 | уступка |
| 2 | 9/9 | 70,00 | 38,00 | 11,00 | 24,49/13,49 | 2,65 м | 44 000 | 3 095 000 | Рассрочка до 3 мес., 100% - 43.000 р/м2 | ||||
| ж/д по ул. Менделеева (Акбузат) | | 2 | 3,9,15/16 | 61,03 | 57,97 | 10,00 | 17,76/14,09 | 2,60 м | чистовая | сдан | 45 000 | 2 807 380 | |
| ТРЕХКОМНАТНЫЕ КВАРТИРЫ | |||||||||||||
| ж/д по ул. 8 Марта сек.В | п+к | 3 | 7,9/13 | 107,10 | 57,09 | 16,33 | 20,16/19,86/17,07 | 2,60 м | чистовая | 1 кв. 2010 г. | 40 000 | 4 299 000 | рассрочка до конца 2010г.- 44.000р/м2, рассрочка до конца 2009 г. - 42.000р/м2 |
| 3 | 13/13 | 106,85 | 56,90 | 16,31 | 20,13/19,70/17,07 | 2,60 м | 40 000 | 4 289 000 | |||||
| 3 | 13/13 | 98,11 | 54,42 | 16,11 | 19,94/17,41/17,07 | 2,60 м | 40 000 | 3 939 400 | |||||
| ЧЕТЫРЕХКОМНАТНЫЕ КВАРТИРЫ | |||||||||||||
| ж/д по ул. 8 Марта сек.А,Б | п+к | 4 | 11/11 | 98,44 | 57,62 | 16,46 | 18,36/17,07/12,36/12,05 | 2,60 м | чистовая | 4кв. 2009г. | 40 000 | 3 952 600 | рассрочка до конца 2010г.- 44.000р/м2, рассрочка до конца 2009 г. - 42.000р/м2 |
| 4 | 11/11 | 95,85 | 59,84 | 13,03 | 18,36/17,07/12,36/12,05 | 2,60 м | 40 000 | 3 849 000 | |||||
| 4 | 11/11 | 98,25 | 57,62 | 9,63 | 18,36/17,07/12,56/9,36 | 2,60 м | 40 000 | 3 945 000 | |||||
| 4 | 11/11 | 96,04 | 59,84 | 13,03 | 18,36/17,07/12,56/9,36 | 2,60 м | 40 000 | 3 856 600 | |||||
| МАШИНОМЕСТА | |||||||||||||
| ж/д по ул. 8 Марта | п+к | м/м | подземная | 20,00 | | | | | черновая | 4 кв. 2009г. | | 700 000 | рассрочка до 01.04.2010г. - 800 000р. |
| ж/д по ул. Комсомольской 28 | м+к | м/м | подземная | 19,00 | | | | | черновая | 1 кв. 2009 г. | 1 уровень | от 500-700 | рассрочка до 20.12.2009г. |
| | | | | 2 уровень | рассрочка до 20.12.2009г. | ||||||||
Квартиры реализуются на условиях договора застройщика с Сетью Агентств Недвижимости «ЭКСПЕРТ». Оплату услуг специалистов первичного жилья, которые помогут вам подобрать квартиру и оформить документы, производит сам Застройщик
По вопросам приобретения квартир в комплексе обращайтесь в офисы Сети Агентств Недвижимости «ЭКСПЕРТ» к специалистам по строящемуся ( первичному) жилью:
Якупова Ирина Ивановна, ведущий менеджер отдела первичного жилья,
Тел. моб: (347) 299-11-21 , 8-909-34-91121
Полякова Ольга Степановна, риэлтор отдела первичного жилья,
Тел. моб:(347) 298-21-01, 8-903-311-2101
Единая Информационная Служба (347) 223-3-223



