Сеть Агентств Недвижимости «ЭКСПЕРТ» предлагает строящиеся квартиры по ценам ниже, чем у застройщика. Микрорайон Колгуевский 35 тыс. руб за кв.м!
Заключено корпоративное эксклюзивное соглашение с компанией «Уфа Девелопмент Групп», которая является генеральным поставщиком строительных материалов, ГСМ и прочих товаров и услуг для строительных компаний.
Мы предлагаем квартиры в следующих строящихся домах, по ценам ниже, чем от застройщика. Дополнительную скидку предоставляет поставщик стройматериалов.
При этом услуги риэлтора оплачивает застройщик!
Микрорайон Колгуевский, дом № 1, дом №14.
Срок сдачи: 3 квартал 2009 года, материал стен – кирпич.
.jpg)
Прайс-лист
| № кв. | Этаж | Кол. комнат | Площадь | Ст-ть 1кв.м. | Общая ст-ть | ||
| Общая | Жилая | Кухня | |||||
| Колгуевский, д.1 | |||||||
| 3 | 1 | 2 | 66,17 | 35,28 | 14,11 | 35 000 | |
| 162 | 3 | 3 | 81,58 | 46,03 | 13,47 | 35 000 | |
| 14 | 4 | 2 | 62,21 | 33,32 | 12,29 | 35 000 | |
| 72 | 2 | 2 | 60,88 | 31,80 | 10,41 | 35 000 | |
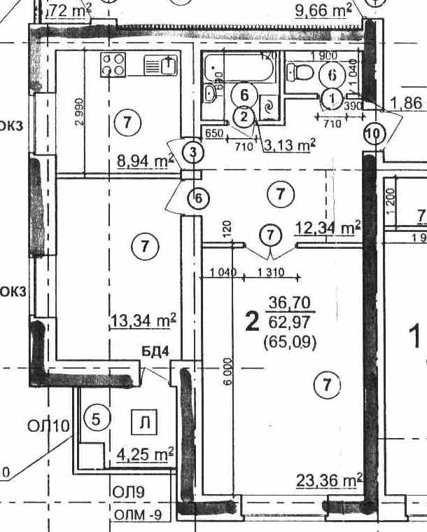
| 130 | 11 | 2 | 65,09 | 36,70 | 8,94 | 35 000 | |
| 68 | 1 | 1 | 49,48 | 19,62 | 11,85 | 35 000 | |
| 76 | 2 | 2 | 65,09 | 36,70 | 8,94 | 35 000 | |
| 96 | 6 | 2 | 60,88 | 31,80 | 10,41 | 35 000 | |
| 139 | 13 | 1 | 49,48 | 19,62 | 11,85 | 35 000 | |
| 151 | 15 | 1 | 49,48 | 19,62 | 11,85 | 35 000 | |
| 60 | 13 | 1 | 45,68 | 19,23 | 13,02 | 35 000 | |
| 172 | 5 | 2 | 58,99 | 32,20 | 12,15 | 35 000 | |
Планировка кв. 162

Планировка кв. 68,139,151

Планировка кв. 172

Планировка кв. 14
.jpg)
Планировка кв. 76,130

Планировка кв. 3
.jpg)
Планировка кв. 60

микрорайон Колгуевский, д. 14
.jpg)
| № кв. | Этаж | Кол. комнат | Площадь | Ст-ть 1кв.м. | Общая ст-ть | ||
| Общая | Жилая | Кухня | |||||
| Колгуевский, д.14 | |||||||
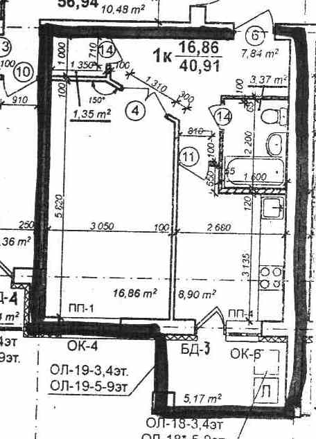
| 36 | 8 | 2 | 62,97 | 39,37 | 16,86 | 35 000 | |
| 74 | 8 | 1 | 40,91 | 16,86 | 13,12 | 35 000 | |
| 103 | 5 | 2 | 58,77 | 33,26 | 11,47 | 35 000 | |
| 130 | 11 | 2 | 59,13 | 31,01 | 10,21 | 35 000 | |
Планировка кв. 74

Планировка кв. 103

Планировка кв. 130

Планировка кв. 36

Оформление объекта недвижимости производится напрямую с застройщиком.
По вопросам приобретения обращайтесь в офисы «ЭКСПЕРТ» в г. Уфа, а также к специалистам:
Якупова Ирина Ивановна, ведущий менеджер отдела первичного жилья, тел.: (347) 299-11-21, 8-909-34-91121
Полякова Ольга Степановна, риэлтор отдела первичного жилья, тел.:(347) 298-21-01, 8-903-311-2101
Кабаева Лиля, риэлтор отдела первичного жилья, тел.: (347) 298-23-21, 8-927-926-9758
Домбровская Ирина, риэлтер отдела первичного жилья, тел.: 8-927-325-3855
Смотрите другие предложения строящегося жилья.
Сеть Агентств Недвижимости «ЭКСПЕРТ» www.expert-russia.ru
Единая Информационная Служба (347) 223-3-223