Новостройки Уфы. ЖК «Достоевский». Элитный жилой комплекс «Достоевский» в историческом центре Уфы
Вниманию покупателей первичной недвижимости! Новые цены!
Продажа по договору долевого участия с регистрацией в регпалате, согласно ФЗ №214 от 30.12.2004г.
Элитный жилой комплекс «Достоевский» расположен в историческом центре Уфы. Комплекс ограничен улицами Достоевского, Ветошникова, Кирова и Мингажева. Адрес новостройки: ул. Достоевского, 134. Элитный комплекс планируется оснастить детским спортивным клубом, тренажёрным залом, фитнес-центром, различными предприятиями обслуживания населения и многими другими административными помещениями и магазинами, которые обеспечат автономную жизнедеятельность в его пределах.
Два первых этажа всего комплекса будут нежилыми: они предназначены для кафе, ресторанов, фитнес-центра, салона красоты и других заведений и административных помещений.
В квартирах производится черновая отделка, поэтому покупатели имеют свободу выбора чистовых материалов. В местах общего пользования (вестибюль, лифтовые и межквартирные холлы) – улучшенная чистовая отделка. Лифты в комплексе будут от марки «OTIS».
Комплекс состоит из 3 секций 10, 14 и 18 этажей.

Проектом предусмотрено строительство подземной парковки на 46 мест.

Материал постройки ЖК «Достоевский»

Каркас здания образует монолитные железобетонные колонны, диафрагмы жесткости и безбалочные междуэтажные перекрытия. Крыша дома – плоская. Покрытие – 2 слоя бикроста. Что касается наружной отделки, то облицовка стен производится из керамического кирпича, а облицовка цоколя – из блоков «besser». Наружные стены – самонесущие, которые поэтажно опираются на плиты перекрытия из ячеистобетонных блоков. Перегородки в жилых помещениях сделаны из ячеистобетонных блоков, в санузлах – из керамического кирпича. Материал лестниц: сборные железобетонные элементы, опирающиеся на металлические лобовые балки.
Проект жилого комплекса «Достоевский» предусматривает застекление всех лоджий. Оконные блоки металлопластиковые с двухкамерным стеклопакетом по ГОСТ 16289-86.
Инфраструктура

Рядом со строящими домами расположены автобусная остановка «УКСИВТ» (Уфимский колледж статистики, информатики и вычислительной техники), трамвайная остановка «РКБ им. Куватова». Неподалёку от жилого комплекса расположены следующие образовательные учреждения: детские сады №317, №20, №147, №149, №278, №11, №129; средние школы №14, №126 и №4, лицей №107, Уфимская городская башкирская гимназия №20 им. Х. Ф. Мустафиной; Уфимский лесохозяйственный техникум, Уфимская государственная академия экономики и сервиса (УГАЭС), Уфимский колледж статистики, информатики и вычислительной техники, и, конечно, Институт права БашГУ. Ближайшие медицинские учреждения: Республиканская клиническая больница (РКБ) им. Г. Г. Куватова, детская городская поликлиника №2, городская поликлиника №51, стоматологическая поликлиника №8, детская городская поликлиника №3.
В нескольких минутах ходьбы от жилого комплекса «Достоевский» расположен один из красивейших и вместительных православных храмов в городе – Кафедральный соборный храм Рождества Богородицы. При храме функционирует воскресная школа.
Строящийся комплекс окружают банки, страховые компании, различные агентства (туристические, юридические и другие), книжные магазины, продуктовые супермаркеты, кафе, рестораны и многое другое. Словом, инфраструктура жилого комплекса развита.
Подробнее о квартирах
| секция | кол-во комнат | стороны света | общая площадь, м2 | Жилая, м2 | Кухня, м2 | Лоджии, м2 (без коэф.) | Цена Т.р. | Сумма Т.р. |
| а | 4 | с, ю | 124,5 | 79,8 | 14,13 | 5,9+4,23 | 60 | 7470 |
| а | 1 | ю | 45,2 | 19,8 | 10,51 | 3,73 | 60 | 2712 |
| а | 1 | ю,в | 48 | 22,6 | 10,51 | 6,3 | 60 | 2880 |
| а | 2 | в,ю | 68,8 | 38,4 | 13,41 | 18,67 | 60 | 4128 |
| а | 1 | з | 45 | 19,9 | 10,17 | 13,38 | 60 | 2700 |
| а | 1 | з | 45 | 19,9 | 10,17 | 13,38 | 60 | 2700 |
| а | 2 | з,с | 75,2 | 41 | 11,49 | 5,96+9,9 | 60 | 4512 |
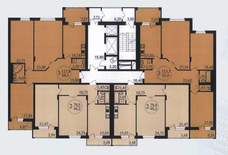
| б | 3 | с,ю | 113,3 | 63,9 | 15,02 | 7,37+4,36 | 60 | 6798 |
| б | 2 | ю | 79,4 | 46,2 | 15,03 | 6,48+3,68 | 60 | 4764 |
| б | 2 | ю | 79,5 | 46,2 | 15,03 | 3,94+3,48 | 60 | 4770 |
| б | 3 | с,ю | 117,8 | 68,5 | 16,16 | 4,07+7,37 | 60 | 7068 |
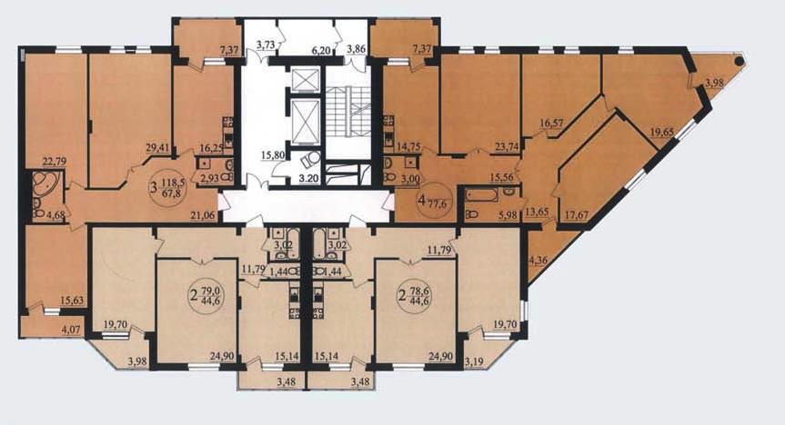
| в | 4 | с, юв | 137,6 | 77,6 | 14,75 | 7,37+3,98+4,36 | 60 | 8256 |
| в | 2 | ю | 78,6 | 44,6 | 15,14 | 3,19+3,48 | 60 | 4716 |
| в | 2 | ю | 79 | 44,6 | 15,14 | 3,98+3,48 | 60 | 4740 |
| в | 3 | с,ю | 118,5 | 67,8 | 16,25 | 4,07+7,37 | 60 | 7110 |
Планировка секций
Темпы строительства:
Фото стройки - август 2012г.

.jpg)
.jpg)
Фото стройки – январь 2013г.
Секция В построена полностью, секция Б – 4 этажа, секция А – цоколь.




Ипотека не предоставляется. Рассрочка: первоначальный взнос от 50% до конца строительства с индексацией стоимости квадратного метра. При покупке квартиры учитывается материнский капитал, однако он действует только в том случае, если Вы покупаете жильё в рассрочку.
Услуги риэлтора – в подарок!
Ссылки на подробное описание квартир:
1-комнатные:
http://www.expert-russia.ru/immovables/show/25796/0
http://www.expert-russia.ru/immovables/show/25804/0
http://www.expert-russia.ru/immovables/show/25807/0
http://www.expert-russia.ru/immovables/show/25801/0
http://www.expert-russia.ru/immovables/show/25806/0
4-комнатная:
http://www.expert-russia.ru/immovables/show/25797/0
По вопросам приобретения обращайтесь к ведущему специалисту АН Эксперт - Альянс