АН «ЭкспертЦентр» предлагает приобрести квартиры в строящемся многоэтажном жилом доме (литер 2), в квартале, ограниченный улицами Свободы, Черниковской, Кремлевской и Первомайской,

09.10.2012

Строительство новых домов и микрорайонов – это необходимый фактор для развития любого города. На сегодняшний день сложно представить наш город без возвышающихся башенных кранов. Новые дома словно вырастают прямо на глазах, меняя и украшая облик нашей столицы. На смену ветхому жилью приходят комфортабельные и современные дома.

 

АН «ЭкспертЦентр» предлагает приобрести квартиры в строящемся многоэтажном жилом доме (литер 2), расположенном по адресу: РБ, Калининский район города Уфа,  квартал, ограниченный улицами Свободы, Черниковской, Кремлевской и Первомайской,  срок сдачи секции В –  4 квартал 2013 г., секции А,Б - 3 квартал 2014 года

Квартал, ограниченный улицами Свободы, Черниковской, Кремлевской и Первомайской,

Строящийся дом входит в состав жилого комплекса, состоящего из группы 12-18-ти этажных домов. Этот микрорайон можно будет назвать украшением Калининского района нашего города. Дома в Черниковке – это здания, сочетающие в себе классический облик и современное качество строительных материалов. Продуманные планировки и богатый выбор квартир делают жилье особенно привлекательным.

Литер 2 – это 3-х подъездный 12-18-ти этажный дом с черновой отделкой. В каждом подъезде будут установлены современные лифты, грузовой и пассажирский.

Технические характеристики в строящемся доме следующие:

Материал стен: каркасно-монолитный.
Заполнение наружних стен: из кирпича.
Конструкция кровли: плоская мягкая.

Наличие систем: 
— пассажирские и грузопассажирские лифты грузоподъемностью 400 и 630 кг.;
— централизованное электроснабжение;
— отопление, вентиляция, дымоудаление;
— горячее и холодное водоснабжение;
— домофонная связь, телефонизация, телевидение, мусоропровод

Электрооборудование и сантехническое оборудование:
— разводка сетей электро-, тепло-, водоснабжения с установкой приборов учета, сетей водоотведения, установка приборов отопления;
— установка сантехнического оборудования: умывальник, мойка, унитаз со смесителем;
— установка электроплиты.

Виды работ, выполняемых в квартире:
— ограждение балконов и лоджий блоками из ПВХ с одинарным остеклением;
— установка оконных и балконных блоков из ПВХ с двухкамерными стеклопакетами;
— установка подоконников;
— улучшенная штукатурка стен;
— затирка швов потолка;
— цементная стяжка, звукоизоляция пола и гидроизоляция пола в санузлах.

Возможна ипотека, первоначальный взнос от 10 % ставка от 13,5 %.

литер 2 секции А, Б, В

1-комн. квартиры
S — 42,84 кв.м; 43,32 кв.м.; 44,45 кв.м; 51,93 кв.м;
стоимость  —  45 000 рублей за кв.м.

2-комн. квартиры
S  —  55,97 кв.м; 63,38 кв.м; 67,84 кв.м;
стоимость —  43 000 рублей за кв.м.

3-комн. квартиры
S — 81,37 кв.м; 84,29 кв.м; 99,13 кв.м;
стоимость — от 40 000 рублей за кв.м.

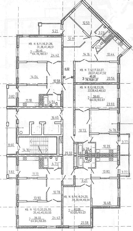
Планировка этажа секции А

Квартал, ограниченный улицами Свободы, Черниковской, Кремлевской и Первомайской,

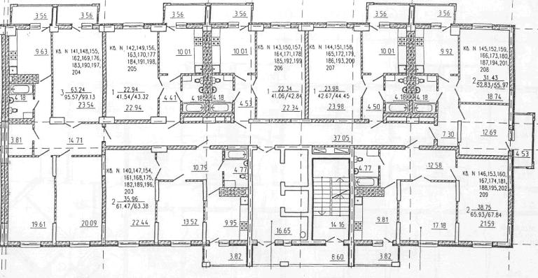
Планировка этажа секции Б

Квартал, ограниченный улицами Свободы, Черниковской, Кремлевской и Первомайской,

 

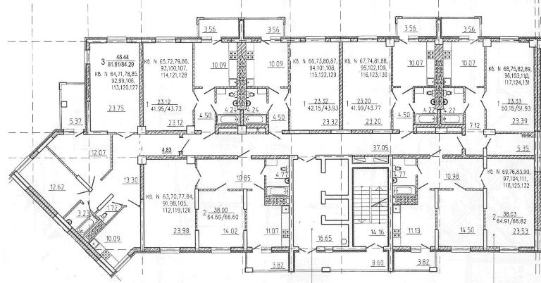
Планировка этажа секции В

Квартал, ограниченный улицами Свободы, Черниковской, Кремлевской и Первомайской,

Оформление по договору долевого участия в строительстве Ф.З. № 214.

 

Есть возможность выбрать нужный этаж.

 

В непосредственной близости от домов находятся:

-Детские сады №№ 152 и 242;

-Гимназия № 111;

- Магазины;
-Лечебное учреждение

Ближайшие остановки «Свободы(ул. Первомайская)» и «Кремлевская» с высоким транспортным обеспечением
Все  это сделает жизнь в комплексе комфортабельной для будущих жителей.

 

 

По вопросам приобретения обращайтесь к специалистам:

 

Токарева Надежда тел. (347)2-999-108, 8-905-35-29-108

Кабаева Лилия тел.  (347)2-98-23-21, 8-903-311-23-21

Якупова Ирина тел. (347)2-99-11-21, 8-909-349-11-21