Агентство недвижимости «ЭКСПЕРТ-Березники» предлагает дома и таун-хаусы в коттеджном поселке «Стрижи» в г. Усолье, Пермский край
Участок под застройку расположен к северо-западу от г. Усолье и к северу от существующего микрорайона многоэтажной застройки г. Березники. Площадь участка составляет 12,9 гектаров, он ограничен ул. Центральная с юга, ул. Дощенникова с запада, жилой деревянной малоэтажной застройкой г. Усолье по ул. Некрасова с востока и трассой «Березники - м/р «Усольский» с севера. Участок имеет сильно вытянутую с севера на юг прямоугольную форму.
На участке 12,9 гектаров будут расположены таун-хаусы, комбинированные дома на четырех хозяев, два многоэтажных дома, детский сад и торговый центр.
Реализация проекта предполагает 5 очередей строительства:
1 очередь – строительство 4 таун-хаусов на 8 семей и 12 комбинированных домов на 4 семьи и трансформаторной подстанции. Будет возведено 80 квартир общей площадью 11 696 кв.м.
В настоящее время ведется забивка свай под фундаменты одного комбинированного дома и двух таун-хаусов со стороны ул. Дощенникова. В 2008 г. планируется сдать около 5 000 кв. м. жилья.
![]() |
| Рис. 1: Первая очередь жилого комплекса «Стрижи» |
2 очередь – строительство 6 таун-хаусов на 8 семей, а также детского сада ориентировочно на 110 мест площадью 1336 кв.м. Суммарная площадь таун-хаусов составит 7 440 кв.м.
|
![]() |
| Рис. 2: Вторая очередь жилого комплекса «Стрижи» |
3 очередь – аналогична первой очереди строительства и также предусматривает строительство 4 таун-хаусов на 8 семей и 12 комбинированных домов на 4 семьи и трансформаторной подстанции.
|
![]() |
| Рис. 3: Третья очередь жилого комплекса «Стрижи» |
Застройка 1-3 очередей осуществляется 2-х этажными домами 2-х типов: таун-хаусами на 8 семей и комбинированными домами на 4 семьи (см. фото ниже):
![]() | ![]() |
| Рис. 4: Комбинированный жилой дом на 4 семьи | Рис. 5: Сблокированный жилой дом на 8 семей (таун-хаус) |
Оба типа домов имеют этажность 2 этажа. Общая площадь квартиры в доме на 4 семьи (рис.4) – 132,2 кв.м.
На первом этаже располагаются прихожая (1), кухня-столовая (2), гостевой санузел (3) и гараж на 1 автомобиль (4).
.jpg)
Второй этаж занимают 3 спальни (5,6,7) и санузел (8):
.jpg)
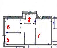
Общая площадь квартиры в таун-хаусе на 8 семей – 158, 8 кв.м.
На первом этаже, как и в доме первого типа, расположены прихожая (1), кухня-столовая (2), гостевой санузел (3), гараж на 1 автомобиль (4).
.jpg)
На втором этаже – 4 спальни (5,6,7,8) и санузел (9).
.jpg)
Если 1, 2 и 3 очереди жилого комплекса «Стрижи» представляют собой малоэтажную застройку, то объекты 4 очереди – два 9-ти этажных жилых дома. Каждый дом состоит из 7 подъездов. Всего предполагается строительство 504 квартир общей площадью 31 286 кв.м.
5 очередь – строительство торгового центра на 10 000 кв.м. в северной части комплекса, обслуживающего население не только жителей комплекса «Стрижи», но и существующего микрорайона «Усольский», а также строящегося в настоящее время администрацией края микрорайона быстровозводимых домов «Усольский-2».
![]() |
![]() |
| Рис. 6: 9-ти-этажные жилые дома в м/р «Стрижи» (4-я очередь строительства) | Рис. 7: Торговый центр в м/р «Стрижи» (5-я очередь строительства) |
Как было отмечено выше, в большинстве своем квартиры в комплексе «Стрижи» - это квартиры в таун-хаусах. В российских условиях таун-хаусы становятся оптимальным вариантом проживания в связи со следующими причинами:
1) Отдельный коттедж стоит дороже, чем экономичный таун-хаус, где центральный подвод коммуникаций удешевляет строительство;
2) В поселках таун-хаусов проживают люди, принадлежащие к одному социальному слою, что позволяет избегать многих конфликтов, происходящих в многоквартирных домах;
3) Покупка таун-хауса выгоднее строительства собственного дома в связи с продолжающимся ростом цен на землю.
Основными преимуществами концепции микрорайона «Стрижи» являются:
- расположение в экологически чистом районе;
- хорошая транспортная доступность (около 20 мин. до центра г. Березники);
- развитая собственная инфраструктура, как собственная, так и существующая;
- грамотный проект, выполненный с учетом строительных норм и особенностей участка, единый архитектурный стиль;
- удобные планировки и площади квартир с учетом мнения потенциального покупателя;
- применение современных и качественных материалов;
- полностью централизованные инженерные сети, коммуникации, газификация;
- наличие управляющей компании.
Завершение всех строительно-монтажных работ на объекте планируется в 2011 г. Общее количество квартир в таун-хаусах составит 204 шт. и 504 квартиры в многоэтажных домах. Общая площадь комплекса составит 72 118 кв.м.
Общий вид комплекса приведен ниже:

По вопросам приобретения обращайтесь:
Агентство недвижимости "ЭКСПЕРТ в г. Березники",
ООО "САН ЭКСПЕРТ-Березники",
Пермский край, г. Березники, ул. Юбилейная, д. 77
(34242) 24-33-28, e-mail: anexpert.59@mail.ru
Директор Прибыткова Наталья Владимировна, тел. 8 904 846 5284
Объекты офиса Сотрудники офиса
.jpg)
.jpg)
.jpg)
.jpg)
.jpg)

